
Полный пакт усл уг
Пример выполненного дизайн-проекта в пакете услуг ПОЛНЫЙ
Проект с максимальным составом планировочной документации разрабатывается для организации наиболее эффективного процесса ремонта в квартире или доме.
В приведенном примере проекта показаны фото состояния квартиры до начала ремонтных работ, далее — разработки визуализации помещений и детальные чертежи, планировки и развертки стен.
-
Первая встреча, на которой мы с вами знакомимся, я рассказываю и показываю, как строится работа, что мы будем делать, что не будем, показываю пример проекта и по шагам проходим весь алгоритм работы от начала и до сдачи проекта (или его полной реализации). К этой встречи вы заполняете анкету (он-лайн или в формате ПДФ на ваш выбор), которая поможет лучше понять ваши желания и вашу ситуацию.






-
Далее мы подписываем договор, вами оплачивается сумма (одним платежем или разбив на 6 платежейь на ваш выбор)
-
Выезжаю на объект и провожу все необходимые измерения и фотофиксацию (от 1.5-2 часов).
-
Чертим обмерный план и переходим к 1 этапу - "Планировочное решение" до 3-х вариантов и согласовываем окончательный вариант планировки.
-
Расчитывается бюджет
![]() |
|---|
![]() |
|---|
![]() |
|---|
![]() |
![]() |
-
После согласования планировки - мы переходим к коллажам. Коллажи - это подборка реальных предметов, мебели и материалов. Коллаж показывает будущее настроение вашей комнаты, ее стиль, настроение. Их количество ограничено (до 2-х вариантов на помещение). Работаем по помещениям, к каждому коллажу прикрепляется список предметов, материалов , которые на нем использованы.
-
После согласования всех коллажей по всем комнатам , мы переходим ко 2 части 2 этапа - "Визуализации 3D". Выполняется 2-3 ракурса на каждую комнату (кроме подсобных помещений). Количество вариантов ограничено - 1 вариант по финальному коллажу + возможны небольшие изменения 1 раз 1 списком (до 5 незначительных изменений).
![]() |
|---|
![]() | ![]() |
|---|---|
![]() | ![]() |
-
На этом же этапе происходит подбор материалов, света и мебели. Если что-то нужно посмотреть и выбрать - выезжаем и смотрим, выбираем. В финальные варианты в идеале попадает все, что вы потом сможете купить. Если что-то не выбрали на этапе рисунков - можно выбрать позже. Этот этап самый длительный, но и самый интересный :)
-
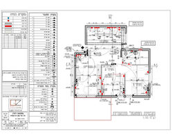
После утверждения всех визуализаций, мы переходим к 1 части 3 этапа - "Рабочая документация". По ним строители будут реализовывать проект
![]() | ![]() | ![]() |
|---|---|---|
![]() | ![]() | ![]() |
![]() | ![]() | ![]() |
![]() |
-
После утверждения всех чертежей остается все проверить, посчитать и собрать ведомость. Это 2 часть 3 этапа- "Ведомость". Это таблицы в формате excel и pdf, куда заносится все, что мы выбрали (чистовые материалы, мебель, свет, сантехника, техника, декор и т.д.)
-
В итоге вы получаете папку с чертежами (А3) и визуализациями (А4), папку- ведомость (А4)
-
В полный дизайн проект входит Авторский надзор (проверка соответствия стройки проекту)



















